Designed & engineered Two-story Single-family Home Project
3D Rendered Studio Designed & Engineered Two-story Single-family Home
Studio designed and engineered two-story single-family home.
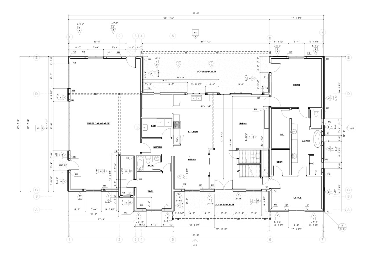
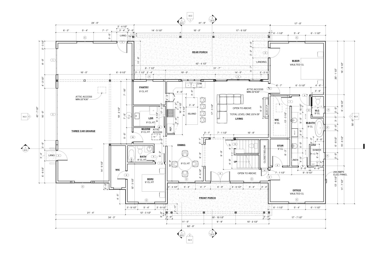
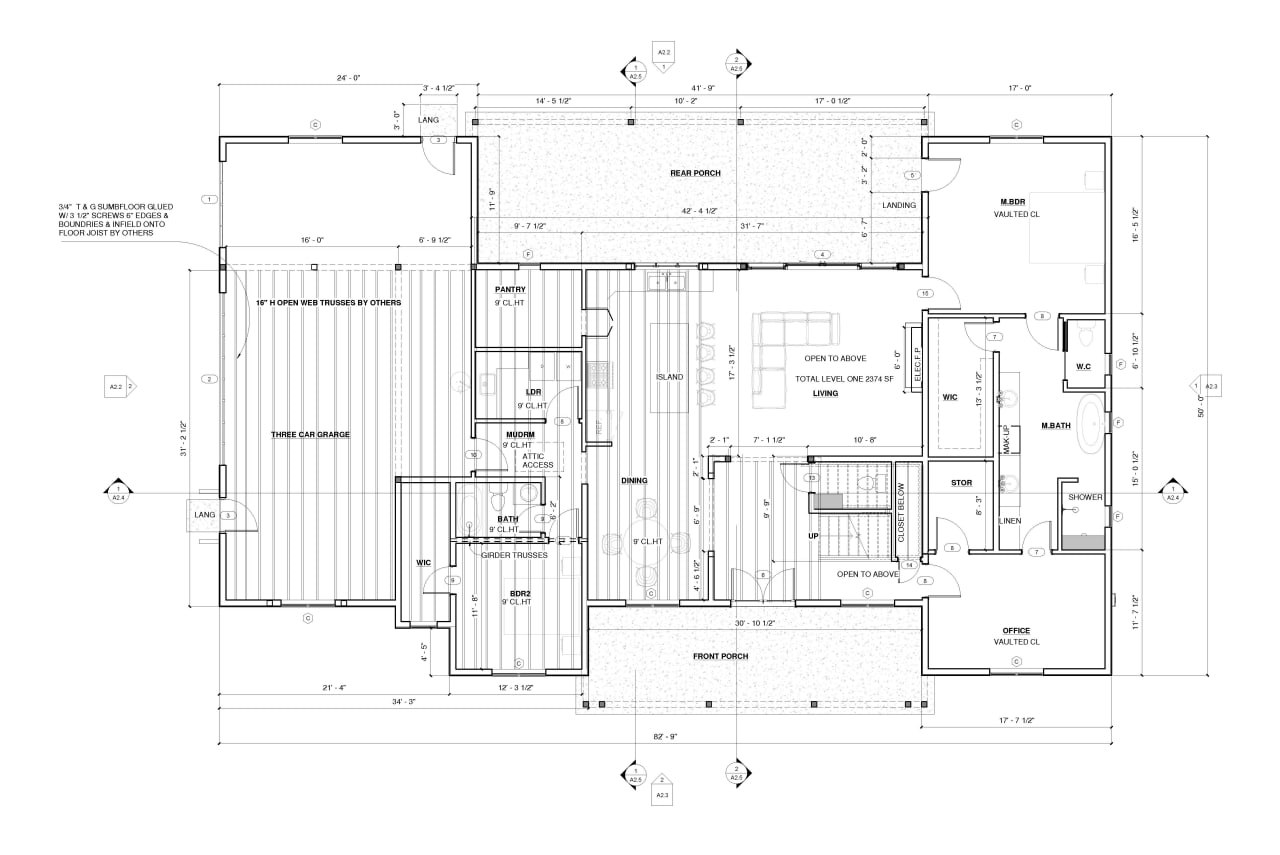
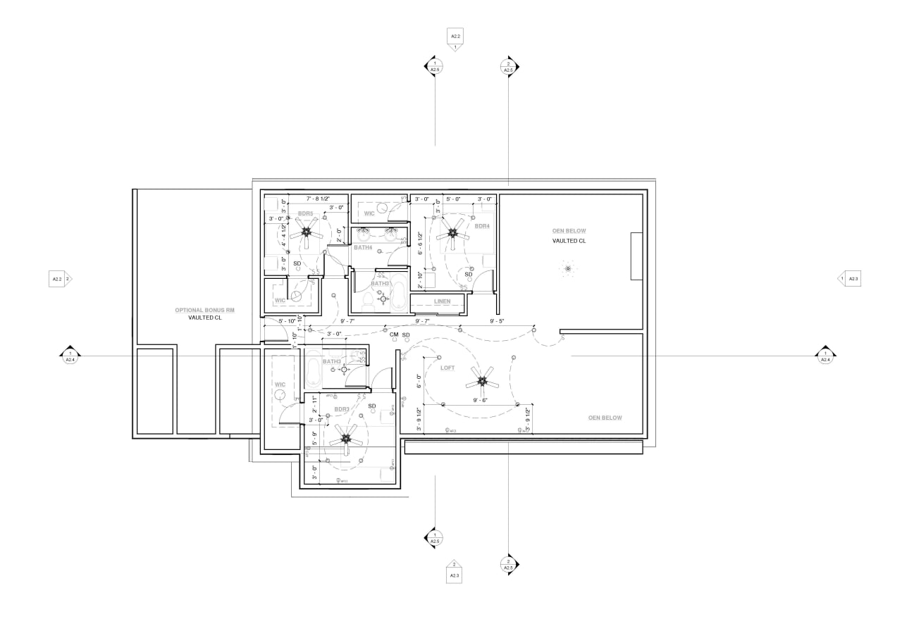
QUH Studio’s new project has finally been reviewed. For this project, QUH Studio designed and engineered a two-story single-family home featuring five bedrooms, a two-car garage, two covered porches, a loft, and an optional bonus room. The living room is open to the second level to create a high ceiling and provide a dramatic design feature. The roof and floor trusses will be provided by a third-party company. Access to the second floor is provided by a U-shaped staircase.
These are the 3D renderings we created for the customer for visual reference.
Elevations, sections and others
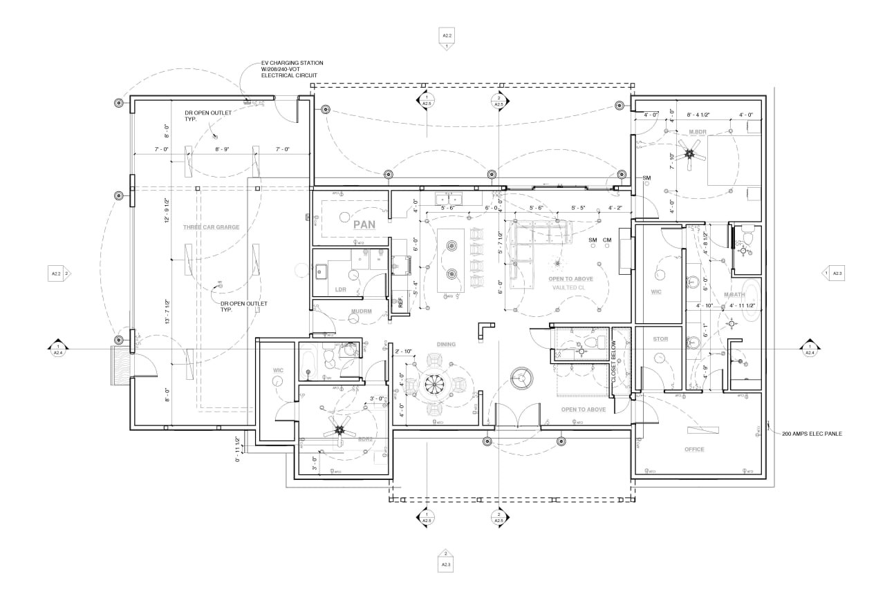
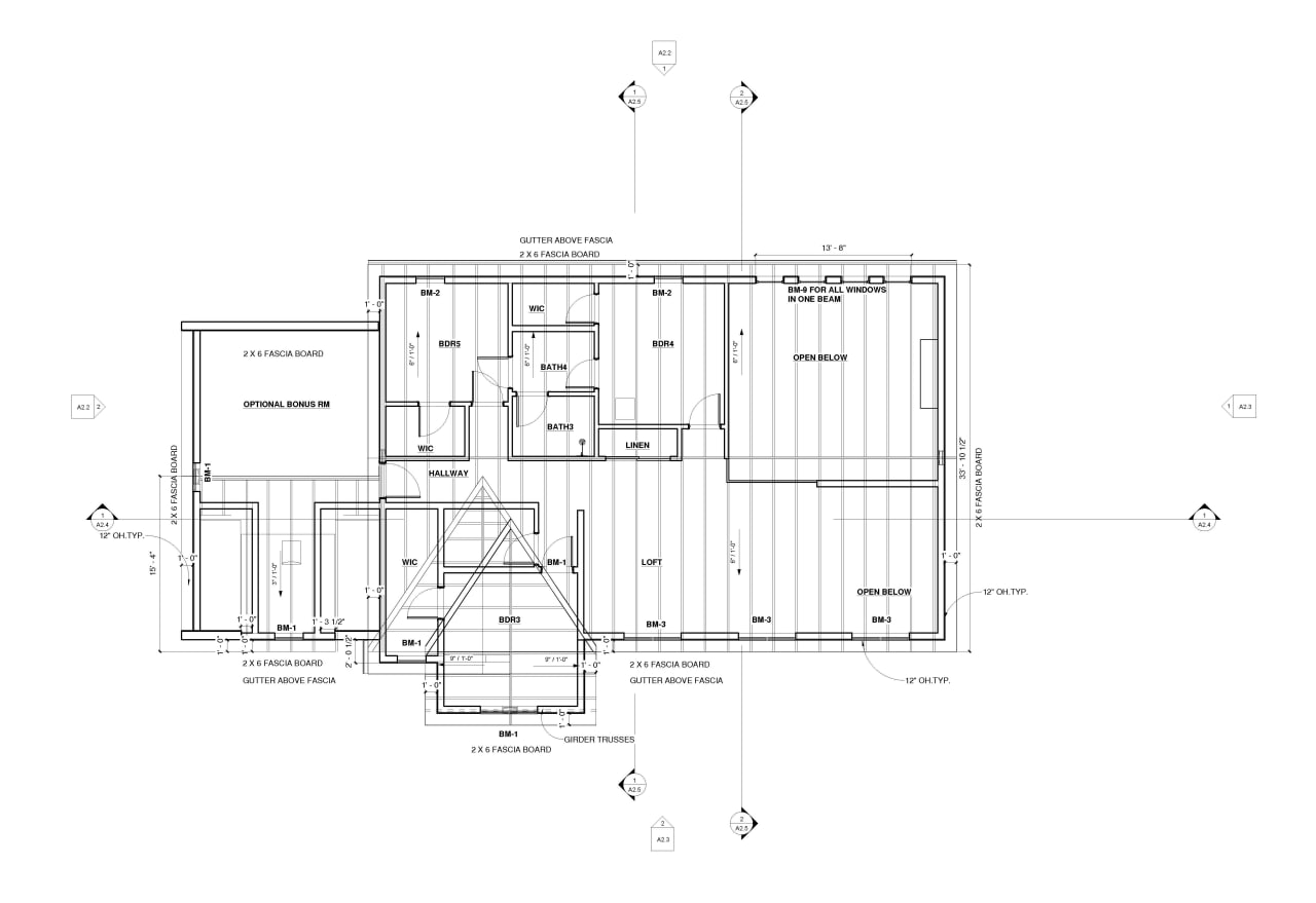
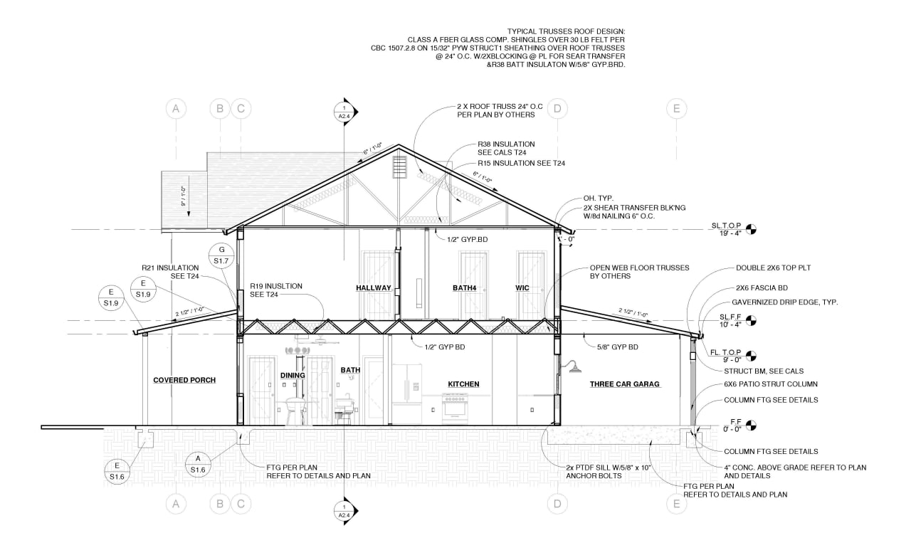
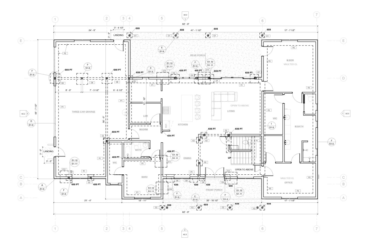
Here we have the elevations, the sections, and the other perinate drawings needed for permitting this particular project. Every project is different and unique, we strive to help the customer complete their projects as expeditiously as possible.
We at Quh Studio’s strive to help the customer realize their dream.