Metal Building
- Home
- Metal Building
Quh Studio’s recent metal building project captures a modern design with modern metal frameworks, with PBR metal siding for exterior and roofing finishing materials!
If you need architecture services for your next metal building project, we can help you with conceptual design, Choosing metal frameworks that are best suited for your project, can layout of the floor plan with the best space planning that is suitable for your family or business, we can then draft you a code complied construction documents, and submitting to the county!







THE PROJECT FEATURES AN ADDITION TO THE EXISTING CHURCH. THE SANCTUARY AND FELLOWSHIP AREA OF THE METHODIST CHURCH WILL BE EXTENDED, AND THE EXISTING FELLOWSHIP AREA WILL BE REMOVED COMPLETELY. METAL STUDS WILL BE USED FOR THE PROJECT, AND METAL FINISH SUCH AS PBR PANEL WILL BE USED FOR WALLS AND ROOF.











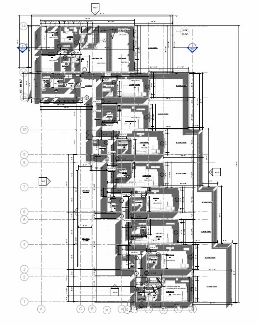
Perched atop a scenic mountain, this contemporary two-level residence is constructed using light-gauge steel framing, offering both durability and sleek, modern aesthetics. The lower level features a one-car garage, a spacious living room, a stylish powder room, and a modern kitchen designed for both functionality and entertaining.
Upstairs, the private quarters include multiple bedrooms, a cozy den, a full bathroom, a laundry area, and access to an open-air deck that showcases breathtaking panoramic mountain views. Expansive windows and open-concept design flood the home with natural light, creating a seamless connection to the outdoors. Each morning, residents can enjoy the fresh mountain air and locally baked fresh bread, making this home a serene and inspiring retreat.










Our new steel building project features steel structural components, concrete patio, pbr exterior finishes!
Let us help you design your dream steel building. please don’t hesitate to contact us. Our team will listen to your needs and preferences; we are here to facilitate your wish lists.
We collaborate with steel providers to provide you with our most economical and intuitive steel building kits to construct the most desired steel residential and commercial buildings.








